
Salzgasse- Freistadt
urbanes Wohnen – historisch – naturnah
Aktuell sind leider keine Wohnungen frei!

BELEGT – Top 1 – EG
61,34 m² – 1 Wohnen & Essen – 1 Küche – 1 Schlafzimmer – 1 Abstellraum – 1 Bad/WC mit Dusche – 1 Eingangsbereich – 2 Vorräume

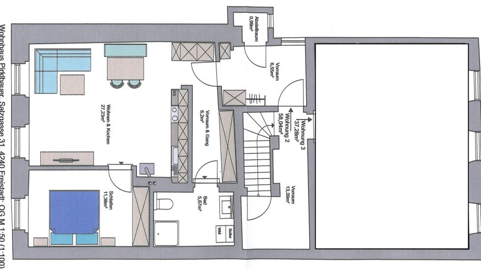
BELEGT – Top 2 – 1. OG
58,04 m² – 1 Wohnraum & Kochen – 1 Bad/WC mit Dusche – 1 Abstellraum – 1 Schlafzimmer – 2 Vorräume

BELEGT – Top 3 – 1. OG
37,28 m² – 1 Wohnen & Essen – 1 Küche – 1 Schlafzimmer – 1 Abstellraum – 1 Bad/WC mit Dusche – 1 Vorraum
Energieausweis
Der Energieausweis dieser Liegenschaft steht als PDF zum Download bereit.
